NEW リフォーム済み中古マンション「大阪市港区」
- 新着情報
- 2018/12/17
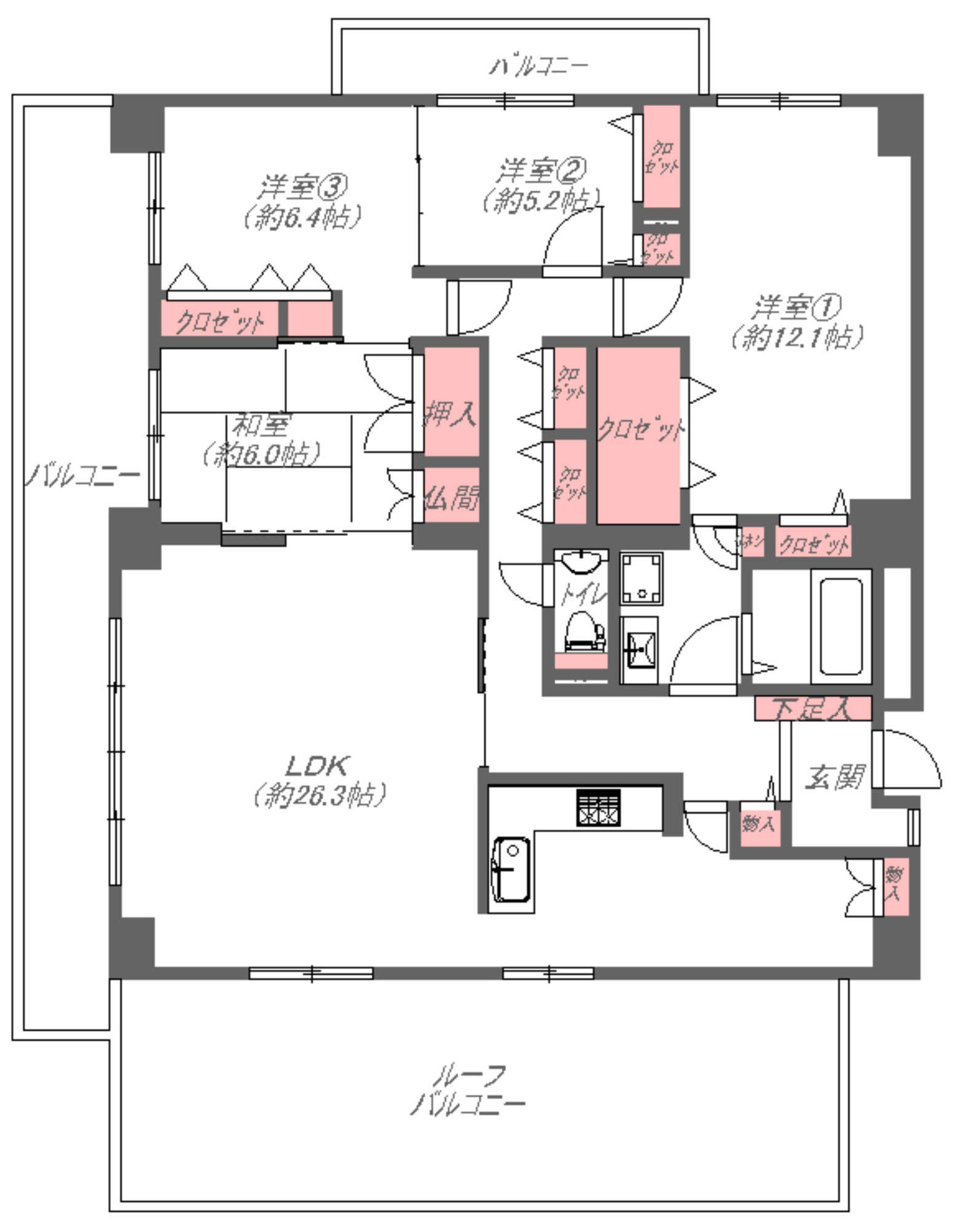
大阪府大阪市港区池島3-5-1「ベイシティ大阪ウエストアベニュー」
RC造・SRC造 地上21階地下1階 5階部分
販売価格は4,580万円で4LDK・128.32㎡ (38.81坪)
✨リフォーム済[2018年8月]
✨システムキッチン新調便器・温水洗浄便座新調
🎵浴室ユニットバス、新調洗面化粧台新調
✨給湯器新調、クロス貼替え
✨池鳥公園まで約240m、スーパーナショナル八幡屋まで約400m
🎵大阪メトロ中央線
「朝潮橋」駅 徒歩9分
ご内覧ご希望の方は
お気軽にお問い合わせください
お待ちしております。
担当:下田(しもだ)
「株式会社マイダス」のライン@はじめました!!
皆様からのお友達追加お待ちしております
最新情報をお届けいたします💫
https://www.midas-corp.co.jp/wp/














