NEW!!リフォーム済(システムキッチン新調)のマンション「大阪府吹田市」
- 新着情報
- 2021/02/26
![]()
おはようございます!
本日ご紹介させて頂くのは
大阪府吹田市のリフォーム済(システムキッチン新調)の中古マンションです。
▼物件名
ユニハイム千里丘吹田清水706
▼価格
1,999万円
▼所在地
大阪府吹田市清水11-1-706
▼交通アクセス
JR東海道本線(京都~大阪)「千里丘」駅 徒歩18分
▼物件詳細
★構造:SRC造 地上11階
★所在階:7階部分
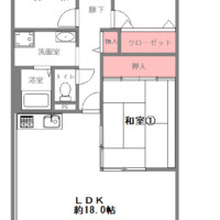
★間取り:3LDK
★専有面積:81.87㎡ (24.76坪)
★築年月日:1983年2月
★総戸数:172戸
★管理費:月額5,300円
★修繕積立金:月額9,680円
▼物件画像はこちら
▼リフォーム内容
リフォーム済[2020年11月]
システムキッチン新調 温水洗浄便座新調 浴室ユニットバス新調
洗面化粧台新調 畳新調 給湯器新調
内覧も随時受け付けております!
0120-106-833

大阪府吹田市・茨木市・高槻市周辺
こちらのエリアの不動産買取りを強化中です!!
中古マンション・空き家・連棟長屋など
積極的に買取りを行っております!!
まずは即日無料出張査定をご利用ください。
皆様からのお問い合わせをお待ちしております!
空き家・空き地・連棟長屋
借地権付建物・再建築不可物件
テナントビル・オフィスビル・事務所ビルなど
売却理由は問いません!!積極的買取りを行っております!!
まずはお気軽にお問い合わせ下さいませ!!
あなたからのお問い合わせおお待ちしております!

担当:北垣(きたがき)
















