NEW リフォーム済み中古マンション「奈良県桜井市」
- 新着情報
- 2018/12/02
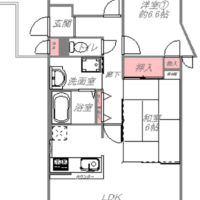
奈良県桜井市桜井585の「ローレルコート桜井」の9階部分!
販売価格は1,198万円で3LDK/66.00㎡ (19.96坪)
🌻リフォーム済
🌼システムキッチン新調、便器・温水洗浄便座新調
🌻浴室ユニットバス新調、洗面化粧台新調
🌼フローリング張替え、給湯器新調
🌻近鉄大阪線「桜井」駅 徒歩12分
ご内覧ご希望の方は
お気軽にお問い合わせください
お待ちしております。
担当:堅本(かたもと)
「株式会社マイダス」のライン@はじめました!!
皆様からのお友達追加お待ちしております
最新情報をお届けいたします💫
https://www.midas-corp.co.jp/wp/
















