NEW 生活便利・リフォーム済のマンション「大阪府豊中市」
- 新着情報
- 2018/10/03
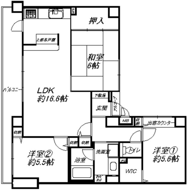
大阪府豊中市東豊中町6丁目の「セントラル東豊中」の1階部分!
販売価格は2,688万円で3LDK・78.19㎡
🎵リフォーム済 小物付
♦洗濯水栓新調・建具
🎵ガス点検済み・照明器具付
🎵フレスコまで約560m
🎵北大阪急行電鉄「桃山台」駅 バス6分「東豊中団地前」停 徒歩4分
ご内覧ご希望の方は
お気軽にお問い合わせください
お待ちしております。
担当:堅本(かたもと)
「株式会社マイダス」のライン@はじめました!!
皆様からのお友達追加お待ちしております
最新情報をお届けいたします💫
https://www.midas-corp.co.jp/wp/













