NEW!「大阪市淀川区」中古マンション【シャルム野中南公園】
- 新着情報
- 2022/06/06
本日は大阪市淀川区で販売中の中古マンション「シャルム野中南公園」についてご紹介致します!
マンション売却したい・相続したマンションの売り方がわからない・現状のままマンションを買取してくれる不動産会社を探している・ボロボロでリフォームが必要なマンションを買い取りしてほしい等
お困りマンションの所有者の方!是非マイダスにご連絡下さい!
まずは無料見積査定をご利用下さいませ!
お気軽にお問い合わせくださいませ!
![]()
▼物件名
シャルム野中南公園
▼価格
2,480万円(税込)
▼所在地
大阪府大阪市淀川区野中南2-2-3
▼交通アクセス
阪急京都本線「十三」駅 徒歩10分
▼物件詳細
★構造:構造:RC造 地上7階
★所在階:1階部分
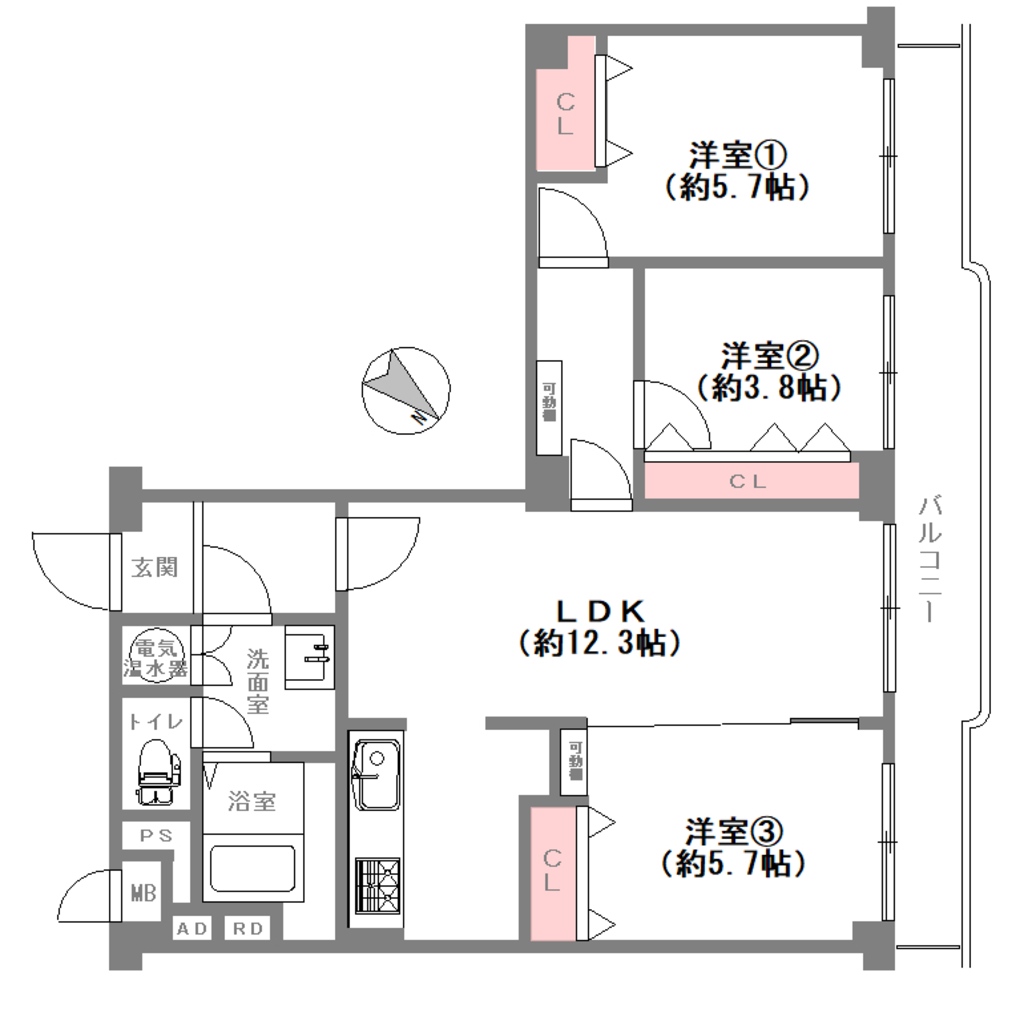
★間取り:3LDK
★専有面積:76.45㎡ (23.12坪)
★築年月:1978年11月
★総戸数:99戸
★管理費:月額 9,930 円
★修繕積立金:月額 10,335 円
★食洗機付
★浴室乾燥機付
★小物・レースカーテン・照明付
▼物件画像はこちら
▼リフォーム内容
リフォーム済[2022年3月]
システムキッチン新調 浴室ユニットバス新調 浴室乾燥機新調
便器・温水洗浄便座新調 洗面化粧台新調 フローリング貼替え
内覧も随時受け付けております!


お困り不動産買取といえばマイダス!
マンションだけではなく、不動産全般についてトータルサポート致します!(^^)!
ご安心してお問い合わせくださいませ!
マイダスCM
↓
担当:堅本(かたもと)

※当社規定により買取が出来ない場合もございます。
あらかじめご了承ください。








































