NEW 角部屋♪南向きのマンション「大阪市西淀川区」
- 新着情報
- 2018/07/07
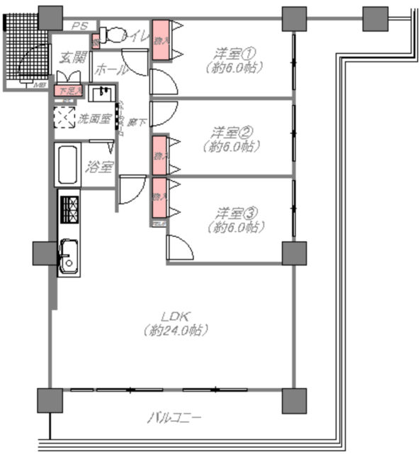
大阪市西淀川区佃1丁目の
「阪神住建千舟リバーサイドヴィラC棟」の16階部分!
販売価格は1,998万円で3LDK・74.20㎡
🎵リフォーム済 家具小物・照明器具付
⭐システムキッチン・便器・温水洗浄便座新調
🎵浴室ユニットバス・給湯器新調
⭐クロス・フローリング貼替え
🎵東佃公園まで約160m
⭐阪神本線「千船」駅 徒歩16分
ご内覧ご希望の方は
お気軽にお問い合わせください
お待ちしております。
担当:北田(きただ)
「株式会社マイダス」のライン@はじめました!!
皆様からのお友達追加お待ちしております
最新情報をお届けいたします💫
https://www.midas-corp.co.jp/wp/














